GOTOWE PROJEKTY

Nasze gotowe projekty

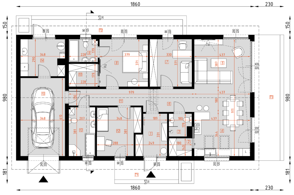
Projekt AURORA MAXI VII SZ

  • Pow. użytkowa: 132,95 m²
  • Pow. zabudowy: 179,55 m²
  • Pow. dodatkowe 19,55 m²
  • Wysokość domu: 6,79 m
  • Piwnica: brak
  • Garaż: brak
  • Dach: dwuspadowy
  • Nachylenie dachu: 35°

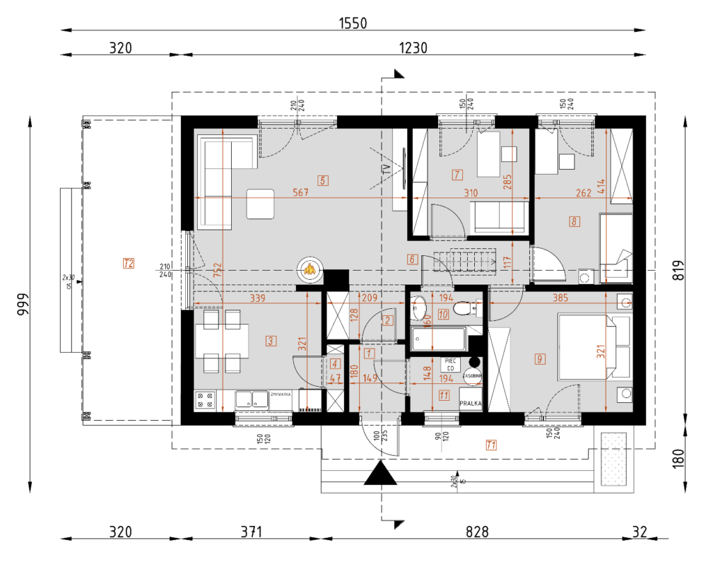
Projekt ELBA SZ

  • Pow. użytkowa: 108,15 m²
  • Pow. zabudowy: 135,35 m²
  • Pow. dodatkowe 52,25 m²
  • Wysokość domu: 6,28 m
  • Piwnica: brak
  • Garaż: brak
  • Dach: dwuspadowy
  • Nachylenie dachu: 30°

Projekt AURORA MIDI SZ

  • Pow. użytkowa: 90,15 m²
  • Pow. zabudowy: 110,50 m²
  • Pow. dodatkowe 27,40 m²
  • Wysokość domu: 6,18 m
  • Piwnica: brak
  • Garaż: brak
  • Dach: dwuspadowy
  • Nachylenie dachu: 30°

Projekt ZORBA IX SZ

  • Pow. użytkowa: 86,60 m²
  • Pow. zabudowy: 110,45 m²
  • Pow. dodatkowe 16,95 m²
  • Wysokość domu: 5,46 m
  • Piwnica: brak
  • Garaż: brak
  • Dach: dwuspadowy
  • Nachylenie dachu: 25°

Projekt ROBERTO SZ

  • Pow. użytkowa: 83,20 m²
  • Pow. zabudowy: 111,55 m²
  • Pow. dodatkowe 39,00 m²
  • Wysokość domu: 5,65 m
  • Piwnica: brak
  • Garaż: brak
  • Dach: dwuspadowy
  • Nachylenie dachu: 25°

Projekt ROY SZ

  • Pow. użytkowa: 81,85 m²
  • Pow. zabudowy: 106,35 m²
  • Pow. dodatkowe 38,60 m²
  • Wysokość domu: 5,78 m
  • Piwnica: brak
  • Garaż: brak
  • Dach: dwuspadowy
  • Nachylenie dachu: 25°

Projekt RODRIGO SZ

  • Pow. użytkowa: 80,45 m²
  • Pow. zabudowy: 104,25 m²
  • Pow. dodatkowe 42,80 m²
  • Wysokość domu: 5,41 m
  • Piwnica: brak
  • Dach: dwuspadowy
  • Nachylenie dachu: 25°

Projekt RICARDO XI SZ

  • Pow. użytkowa: 72,40 m²
  • Pow. zabudowy: 99,65 m²
  • Pow. dodatkowe 34,35 m²
  • Wysokość domu: 6,16 m
  • Piwnica: brak
  • Dach: dwuspadowy
  • Nachylenie dachu: 30°

Projekt TANGO IV SZ

  • Pow. użytkowa: 60,90 m²
  • Pow. zabudowy: 76,85 m²
  • Pow. dodatkowe 39,35 m²
  • Wysokość domu: 6,77 m
  • Piwnica: brak
  • Garaż: brak
  • Dach: dwuspadowy
  • Nachylenie dachu: 40°

Projekt FILEMON II SZ

  • Pow. użytkowa: 59,60 m²
  • Pow. zabudowy: 75,10 m²
  • Pow. dodatkowe 27,50 m²
  • Wysokość domu: 6,52 m
  • Piwnica: brak
  • Garaż: brak
  • Dach: dwuspadowy
  • Nachylenie dachu: 30°

Projekt TANGO V SZ

  • Pow. użytkowa: 54,45 m²
  • Pow. zabudowy: 69,70 m²
  • Pow. dodatkowe 39,40 m²
  • Wysokość domu: 5,88 m
  • Piwnica: brak
  • Garaż: brak
  • Dach: dwuspadowy
  • Nachylenie dachu: 30°

Projekt D57AD

  • Pow. podłóg: 50,53 m²
  • Pow. użytkowa: 50,53 m²
  • Pow. zabudowy: 64,31 m²
  • Wysokość domu: 7,08 m
  • Poddasze: do zaadaptowania/strych
  • Piwnica: brak
  • Garaż: brak
  • Dach: dwuspadowy
  • Nachylenie dachu: 40°

Projekt D67

  • Pow. podłóg: 73,54 m²
  • Pow. użytkowa:  66,76 m²
  • Pow. zabudowy: 63,33 m²
  • Wysokość domu: 6,53 m
  • Poddasze: użytkowe
  • Piwnica: brak
  • Garaż: brak
  • Dach: dwuspadowy
  • Nachylenie dachu: 40°

Projekt D153BD

  • Pow. podłóg: 102,26 m²
  • Pow. użytkowa: 92,85 m²
  • Pow. zabudowy: 68,69 m²
  • Wysokość domu: 7,70 m
  • Poddasze: użytkowe
  • Piwnica: brak
  • Garaż: brak
  • Dach: dwuspadowy
  • Nachylenie dachu: 37°

Projekt D237D

  • Pow. podłóg: 47,38 m²
  • Pow. użytkowa: 47,38 m²
  • Pow. zabudowy: 60,55 m²
  • Wysokość domu: 5,21 m
  • Poddasze: nieużytkowe
  • Piwnica: brak
  • Garaż: brak
  • Dach: dwuspadowy
  • Nachylenie dachu: 23°

Projekt D323

  • Pow. podłóg: 82,00 m²
  • Pow. użytkowa: 82,00 m² 
  • Pow. zabudowy: 100,78 m²
  • Wysokość domu: 6,50 m
  • Poddasze: brak
  • Piwnica: brak
  • Garaż: brak
  • Dach: dwuspadowy
  • Nachylenie dachu: 30°

Projekt D324

  • Powierzchnia użytkowa: 62,33 m²
  • Powierzchnia zabudowy: 81,13 m²
  • Wysokość domu: 5.40 m
  • Poddasze: brak
  • Piwnica: brak
  • Garaż: brak
  • Dach: dwuspadowy
  • Nachylenie dachu: 25°

Projekt D326

  • Powierzchnia użytkowa: 50,39 m²
  • Powierzchnia zabudowy: 65,94 m²
  • Wysokość domu: 5.32 m
  • Poddasze: brak
  • Piwnica: brak
  • Garaż: brak
  • Dach: dwuspadowy
  • Nachylenie dachu: 25°

Projekt D332

  • Pow. użytkowa: 121,75  m²
  • Pow. zabudowy: 182,19 m²
  • Wysokość domu: 7,01 m
  • Poddasze: brak
  • Piwnica: brak
  • Garaż: jednostanowiskowy 
  • Dach: dwuspadowy
  • Nachylenie dachu: 35°

Projekt D340

  • Pow. użytkowa:  117,63 m²
  • Pow. zabudowy: 145,28 m²
  • Wysokość domu: 7,01 m
  • Poddasze: brak
  • Piwnica: brak
  • Garaż: brak
  • Dach: dwuspadowy
  • Nachylenie dachu: 35°