Gotowy projekt, z możliwością Twoich adaptacji!
Projekt
D332
Opis Ogólny
- Pow. użytkowa: 121,75 m²
- Pow. zabudowy: 182,19 m²
- Wysokość domu: 7,01 m
- Poddasze: brak
- Piwnica: brak
- Garaż: jednostanowiskowy
- Dach: dwuspadowy
- Nachylenie dachu: 35°
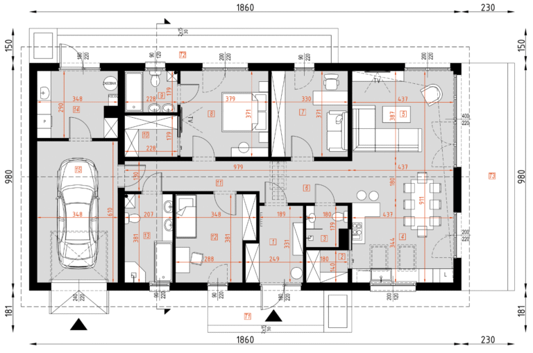
PARTER
- 1. WIATROŁAP 7,27 m²
- 2. SPIŻARNIA 2,52 m²
- 3. TOALETA 2,90 m²
- 4. KUCHNIA 15,03 m²
- 5. SALON 24,84 m²
- 6. HALL 7,18 m²
- 7. GABINET/POKÓJ 12,24 m²
- 8. SYPIALNIA 14,05 m²
- 9. ŁAZIENKA 4,05 m²
- 10. GARDEROBA 4,08 m²
- 11. KORYTARZ 7,54 m²
- 12. POKÓJ 12,18 m²
- 13. ŁAZIENKA 7,87 m²
- 14. POM. TECHNICZNE 9,79 m²
- 15. GARAŻ 21,22 m²
- T.1 TARAS 9,00 m²
- T.2 TARAS 18,15 m²
- T.3 TARAS 22,53 m²
Propozycja elewacji
Stan deweloperski:
- projekt architektoniczno-budowlany
- opracowanie rysunków warsztatowych (przygotowanie produkcji)
- transport i montaż na terenie województwa kujawsko-pomorskiego (pozostałe lokalizacje wyceniamy indywidualnie)
- kierownik budowy
- prace porządkowe po zakończeniu realizacji
- ściany zewnętrzne
- izolacja termiczna ścian zewnętrznych
- jednostronne płytowanie ścian zewnętrznych
- ściany wewnętrzne z izolacją wygłuszeniową
- konstrukcja dachu
- poszycie dachowe wraz z obróbkami blacharskimi
- orynnowanie
- podbitka dachowa
- obróbka otworów okiennych oraz drzwiowych
- stolarka okienna trzyszybowa
- parapety zewnętrzne
- drzwi zewnętrzne antywłamaniowe
- sufit
- elewacja
- instalacja elektryczna wraz z rozprowadzeniem oraz montażem rozdzielni
- instalacja sanitarna oraz wodociągowa wraz z rozprowadzeniem
- montaż grzejników na podczerwień wraz z panelem sterującym (centralne ogrzewanie)
- wykończenie wewnątrz płytami gipsowo-kartonowymi o zwiększonej wytrzymałości Rigips Duraline
Stan surowy zamknięty:
- projekt architektoniczno-budowlany
- opracowanie rysunków warsztatowych (przygotowanie produkcji)
- kosztorys inwestorski
- transport i montaż na terenie województwa kujawsko-pomorskiego (pozostałe lokalizacje wyceniamy indywidualnie)
- kierownik budowy
- prace porządkowe po zakończeniu realizacji
- ściany zewnętrzne
- jednostronne płytowanie ścian zewnętrznych
- konstrukcja dachu
- poszycie dachowe wraz z obróbkami blacharskimi
- orynnowanie
- podbitka dachowa
- obróbka otworów okiennych oraz drzwiowych
- stolarka okienna trzyszybowa
- parapety zewnętrzne
- drzwi zewnętrzne antywłamaniowe
Dodatkowe usługi, które wykonujemy:
- wykonanie płyty fundamentowej
- wykonanie mikropali fundamentowych
- pompa ciepła
- ogrzewanie gazowe
- maty grzewcze
- rekuperacja
- klimatyzacja
- fotowoltaika
- ogrzewanie paliwem stałym
- uzyskanie niezbędnych dokumentów oraz pozwoleń do rozpoczęcia realizacji
- adaptacja projektu gotowego do warunków działki – wykonanie Projektu Zagospodarowania
Terenu działki (PZT) wraz z Analizą Oddziaływania na działki sąsiednie - dokonanie zgłoszenia lub Uzyskanie Decyzji o Pozwoleniu na budowę
Czas realizacji:
– opracowanie rysunków warsztatowych (przygotowanie produkcji) do 20 dni
– produkcja prefabrykatów do 60 dni
– montaż na budowie 1 dzień
– prace uzupełniające 60 dni
Autor projektu: mgr inż. architekt Krzysztof Wolski Pracownia architektoniczna: Artinex Projekty


